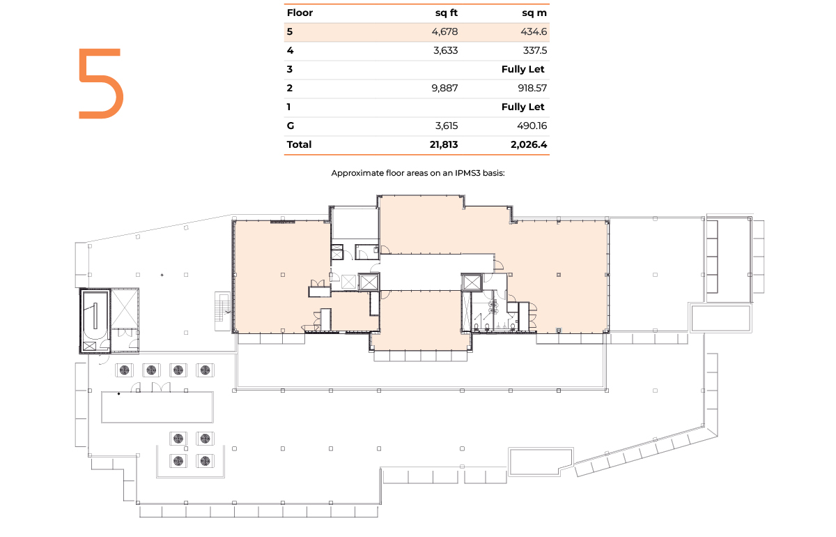
HIGH QUALITY OFFICE SUITES AVAILABLE FROM 3,615 - 21, 813 SQ FT

Chelmsford’s premier office building

Regent House is an impressive glazed fronted six-storey building extending to 80,000 sq ft built in 2015, incorporating a striking three-storey atrium.

The building benefits from extremely strong sustainability credentials and offers the highest specification of office accommodation within the city centre. Regent House lies adjacent to Chelmsford railway station which provides strong transport links into London Liverpool Street station in 32 minutes.

Current tenants at Regent House include Atkins, Medsol, Ringway Jacobs, QBE Insurance and Allianz.

modern workspace

availability

at your leisure

city life

Chelmsford is the principal commercial centre serving the County of Essex situated approximately 30 miles east of London with a thriving business community with occupiers including, Barclays, Atkins, Gallagher Insurance, AON, Grant Thornton, Birkett Long, Tees Law, RSA and QBE.

The city is served by a mainline railway station with a fastest journey time to London Liverpool Street of 32 minutes. The A12 runs to the south of the city, which provides intersects with the M25 at J.28, approx. 12 miles to the west are the North Essex towns of Witham and Colchester together with the east coast ports of Felixstowe and Harwich to the east.

downloads

viewing

By appointment through the joint sole agents.
Michael Storrs
M: 07881 507 780 
E: mstorrs@savills.com